Descrizione

Ufficio professionale / Studio medico di prestigio in zona centrale in vendita
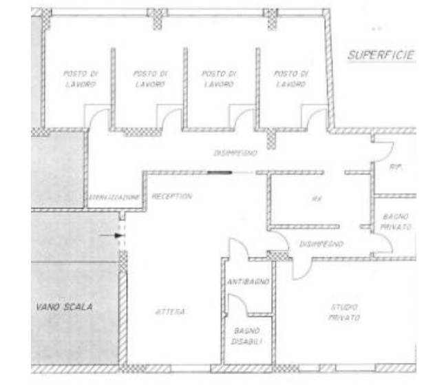
Immobile commerciale in classe A/10 , in ottime condizioni, climatizzato e dotato di tutti i comfort e di agibilità, già adibito a studio medico, vendesi in zona centrale a pochi metri da Piazza Cairoli, dalla Stazione e dai collegamenti per la Calabria. L'immobile sito al piano I di un fabbricato in buone condizioni, in zona ottimamente servita dai mezzi pubblici e da attività commerciali di ogni genere, ha una superficie lorda di 159 mq in classe energetica G Ipe 154,95 KWh/mq ed è all'interno suddiviso in 5 comodi vani e postazioni di lavoro oltre 2 bagni ( di cui 1 per disabili ), sala di attesa con reception, ripostiglio e zona al momento destinata a sterilizzazione e radiografie. Per la composizione interna l'immobile si presta a qualsiasi attività professionale e di ufficio, in un contesto signorile e pronto per essere utilizzato. Non perdere l'opportunità di visitare questo immobile in vendita, prenota la tua visita al nr.0906411072. Per altre informazioni visita il sito.wwwcasainimmobiliare.eu


Caratteristiche principali

Stato Immobile
Buono
Accessori: Aria Condizionata, Bagno Handicap, Ripostiglio

Mappa

via 27 Luglio 40,

Cookie preference